光と木が映える、リビング勾配天井の平屋風住宅
家族が自然と集まり、毎日の暮らしにゆとりが生まれる住まい。

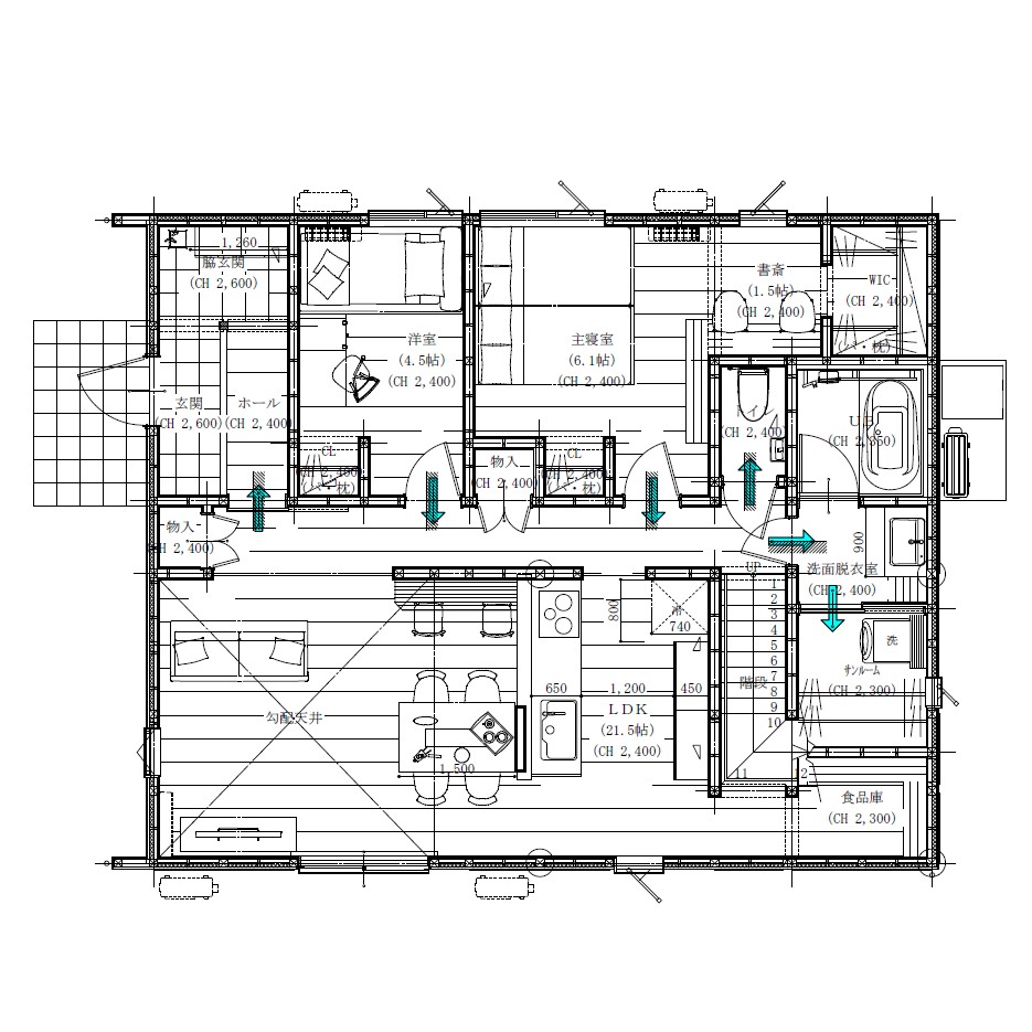
杉の天井と勾配天井がつくる、開放感あるリビング

リビングに入ると、まず目に入るのが杉の板張りによる勾配天井。
天井を高くとることで、実際の帖数以上に広がりを感じられる空間になっています。
また、自然素材ならではの木の表情が、光の入り方によって時間ごとに変わり、
朝も夕方も、心が落ち着くリビングに仕上がりました。
ホールからLDKまで、仕切りのない回遊動線

ホールとLDKの間には、あえて仕切りを設けず、
家の中をぐるりと回れる回遊動線を採用しています。
さらに、移動がスムーズで家事や身支度も無駄な動きが少なく、
平屋のように暮らせる間取りです。
キッチンを中心に、家族の様子が見える配置

キッチンはダイニングと横並びに配置し、
料理をしながらでも家族の様子が自然と目に入ります。
一方で、背面には階段下を活用した収納とパントリーを設け、
生活感が出やすい物は見えにくい位置へ。
すっきりとした空間を保ちながら、収納力もしっかり確保しました。
造作カウンターが、暮らしにちょうどいい居場所に

リビングの一角には造作カウンターを設置。
家事の合間の作業や、お子さまの宿題、ちょっとした書き物など、
日常の中で気軽に使える場所として活躍します。
「わざわざ机に向かわなくてもいい」
そんな距離感が、暮らしにゆとりを生み出します。
水まわりも、使いやすさを大切に

洗面脱衣室には可動棚を設け、
タオルや日用品をまとめて収納できるようにしました。
毎日使う場所だからこそ、
片付けやすさ・動きやすさを重視した計画です。
玄関にさりげない、やさしさを

玄関にはアーチ形のニッチを設け、
お気に入りの雑貨や季節の小物を飾れるスペースに。
住まいに入った瞬間から、
この家らしいやさしい雰囲気を感じられます。
施工データ
- 家族構成:ご夫婦+お子さま
- 施工場所:福井県越前市家久町
- 間取り:3LDK(平屋風住宅)
こんな方におすすめの住まいです
- 平屋のように暮らせる家を検討している方
- 勾配天井のある開放的なリビングに憧れている方
- 家事動線や収納も大切にしたい方
この施工事例のような家づくりをご検討の方へ
「この施工事例のような家を建てたい」
「自分たちの暮らしに合う間取りを相談したい」
そんな方は、きごころ相談会でお気軽にご相談ください。
土地探しから資金計画まで、丁寧にお話を伺います。



